 
			
		Obj. č: NED350DBÍLÁ
1 262,15 Kč
1 043,10 Kč bez DPH
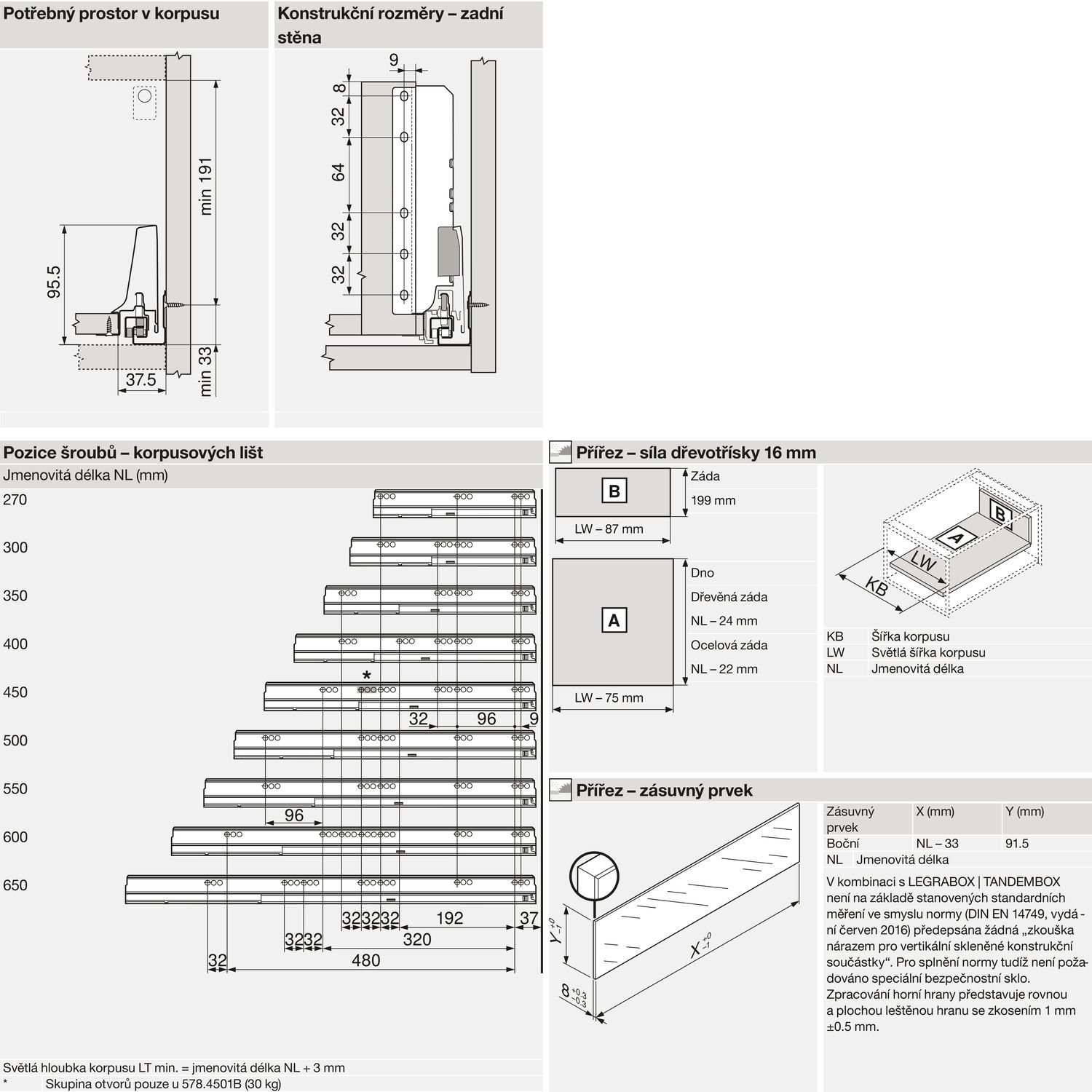
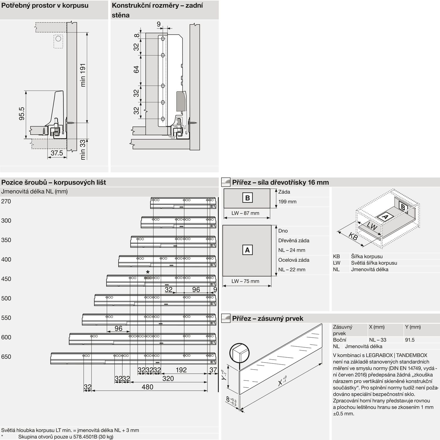
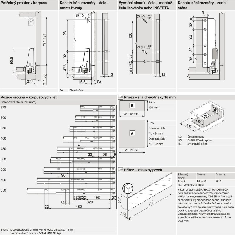
BLUM TANDEMBOX antaro TIP-ON BLUMOTION, sada D+reling, 350mm, 30kg, hedv.bílá Typ: TANDEMBOX antaro Výrobní číslo: sada-výška D / TIP-ON Blumotion Jmenovitá délka (mm): 350 Výška bočnice (mm): 83 Nosnost (kg): 30 Materiál: ocel hedvábně bílá mat plný výsuv se skrytým vedením, lehký a plynulý chod s jednoduchým relingem možnost využití zásuvných prvků potřebný prostor v korpusu: výška 224 mm, s TIP-ON BLUMOTION 227 mm min. světlá hloubka korpusu = jmenovitá délka NL + 3 mm montáž čela bez nářadí nastavení čela ve dvou směrech Upozornění: Při použití diagonálně pro úzké korpusy nosnost max. 20 kg. TIP-ON BLUMOTION spojuje přednosti mechanického bezúchytkového otevírání TIP-ON s osvědčeným tlumením BLUMOTION pro měkké a tiché zavírání - vše zcela mechanické Upozornění: čelní kování a vhodnou jednotku TIP-ON BLUMOTION nutno objednat samostatně Rozsah dodávky: 1 sada - bočnice včetně krytek 1 sada - korpusové lišty včetně TIP-ON BLUMOTION 1 sada - držák zadní stěny 1 sada - podélný reling
BLUM TANDEMBOX antaro TIP-ON BLUMOTION, sada D+reling, 350mm, 30kg, hedv.bílá
 
              
