Kategorie

BLUM X ANTARO 400 C bílý 30kg, KOMPLET

BLUM X ANTARO 400 C bílý 30kg, KOMPLET

Obj. č: NED400CBÍLÁ

1 271,95 Kč

1 051,20 Kč bez DPH

bal
Koupit

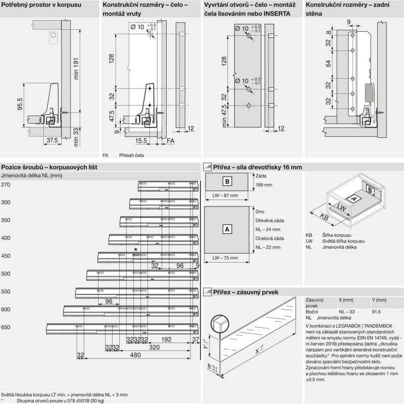
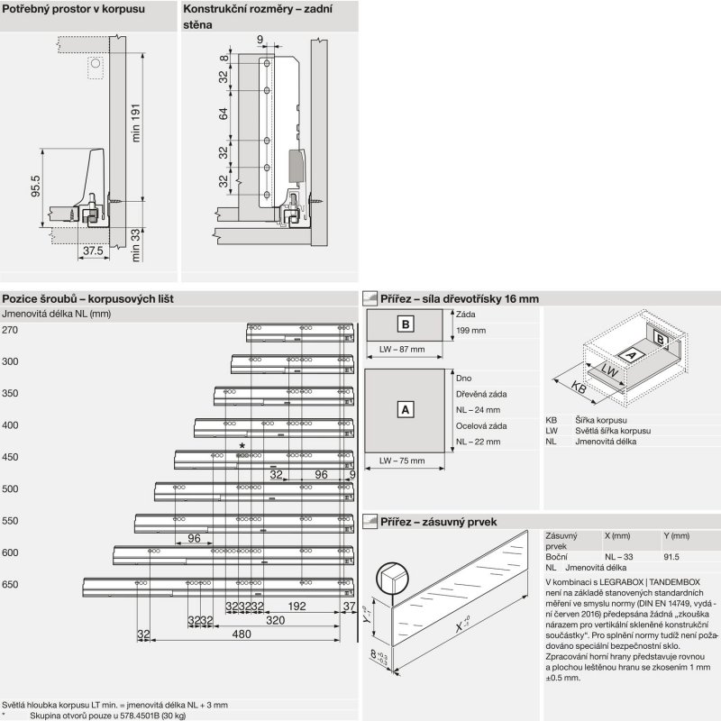
    Jmenovitá délka (mm): 400
    Výška bočnice (mm): 83
    Nosnost (kg): 30
    Materiál: ocel hedvábně bílá mat

    plný výsuv se skrytým vedením, lehký a plynulý chod
    s jednoduchým relingem
    možnost využití zásuvných prvků
    potřebný prostor v korpusu: výška 192 mm,
    min. světlá hloubka korpusu = jmenovitá délka NL + 3 mm
    montáž čela bez nářadí
    nastavení čela ve dvou směrech

    TIP-ON BLUMOTION spojuje přednosti mechanického bezúchytkového otevírání TIP-ON s osvědčeným tlumením BLUMOTION pro měkké a tiché zavírání - vše zcela mechanické

Upozornění:
čelní kování a vhodnou jednotku TIP-ON BLUMOTION nutno objednat samostatně

Rozsah dodávky:
1 sada - bočnice včetně krytek
1 sada - korpusové lišty včetně TIP-ON BLUMOTION
1 sada - držák zadní stěny
1 sada - podélný reling

  • Barva: BÍLÁ
  • Délka: 400.
  • Výrobce: BLUM

BLUM TANDEMBOX antaro TIP-ON BLUMOTION, sada C+reling, 400mm, 30kg, bílá