 
			
		Obj. č: NED400CŠEDÁ
1 271,95 Kč
1 051,20 Kč bez DPH
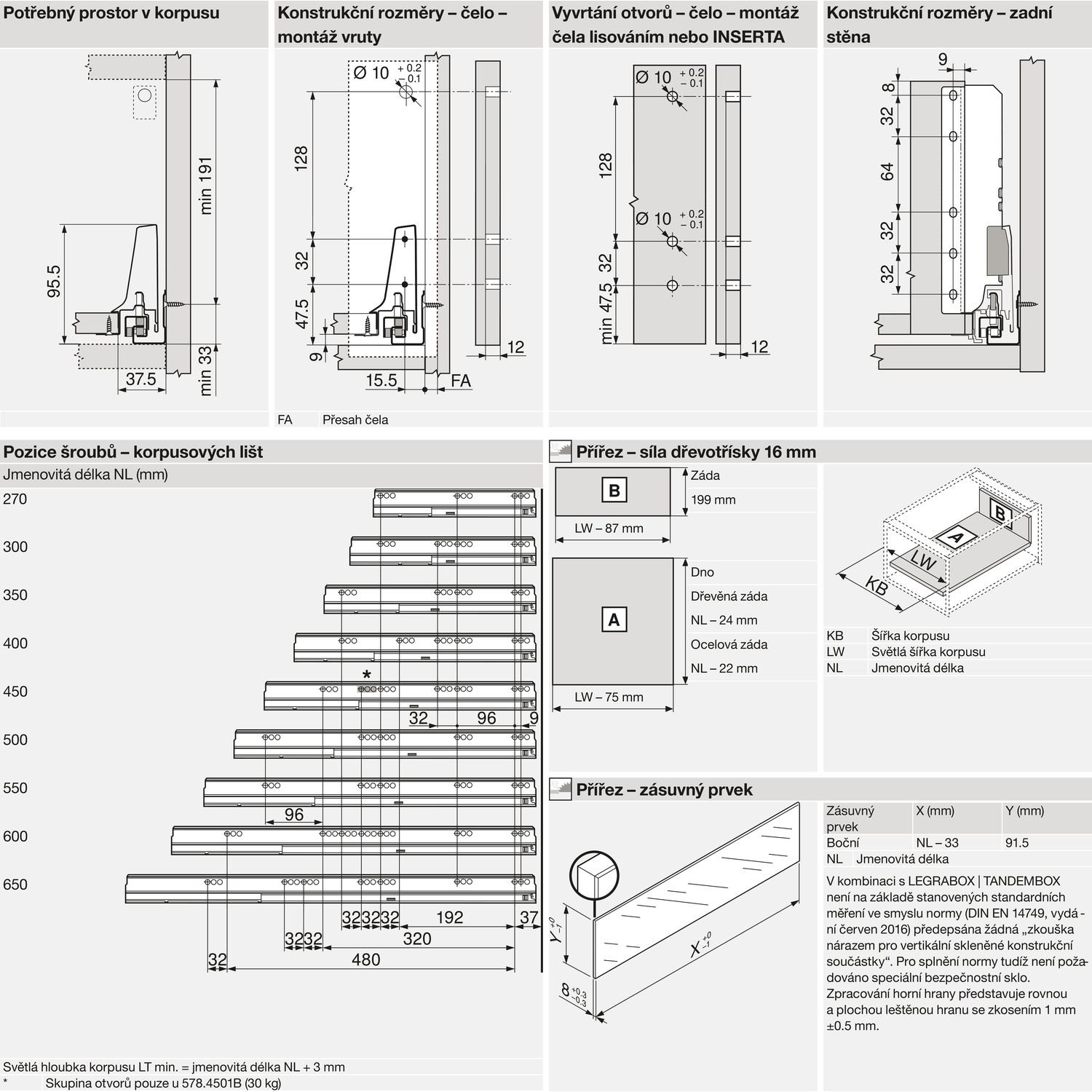
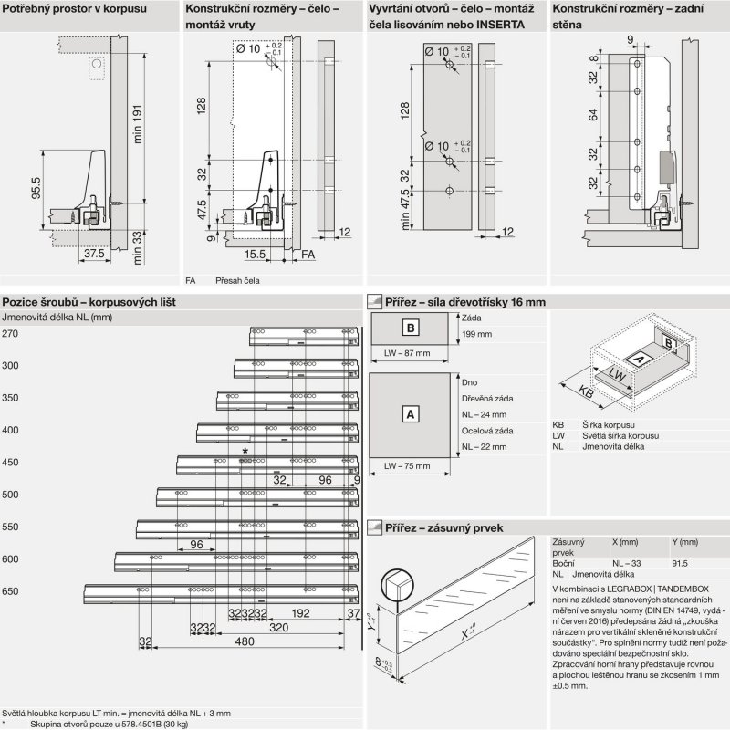
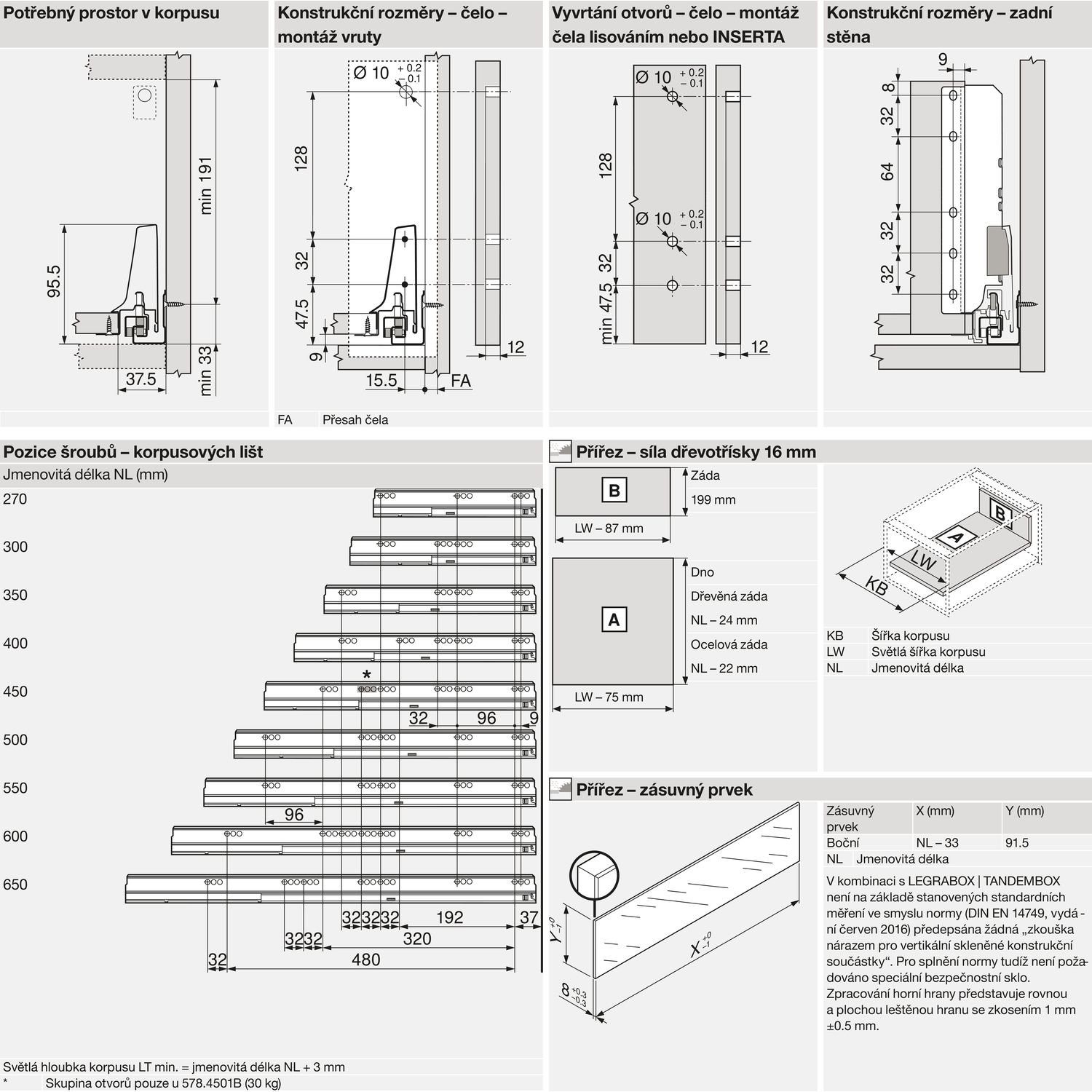
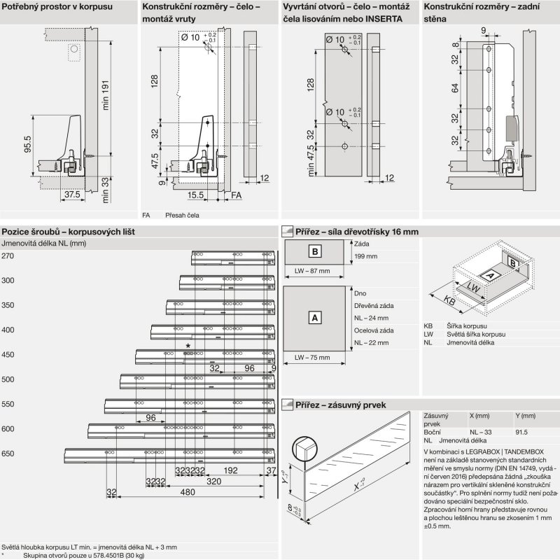
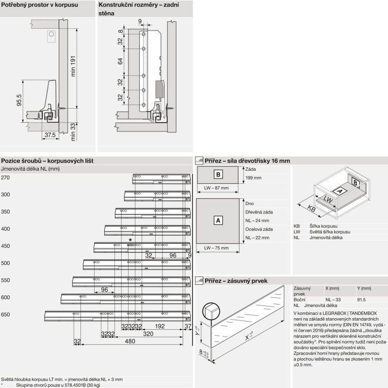
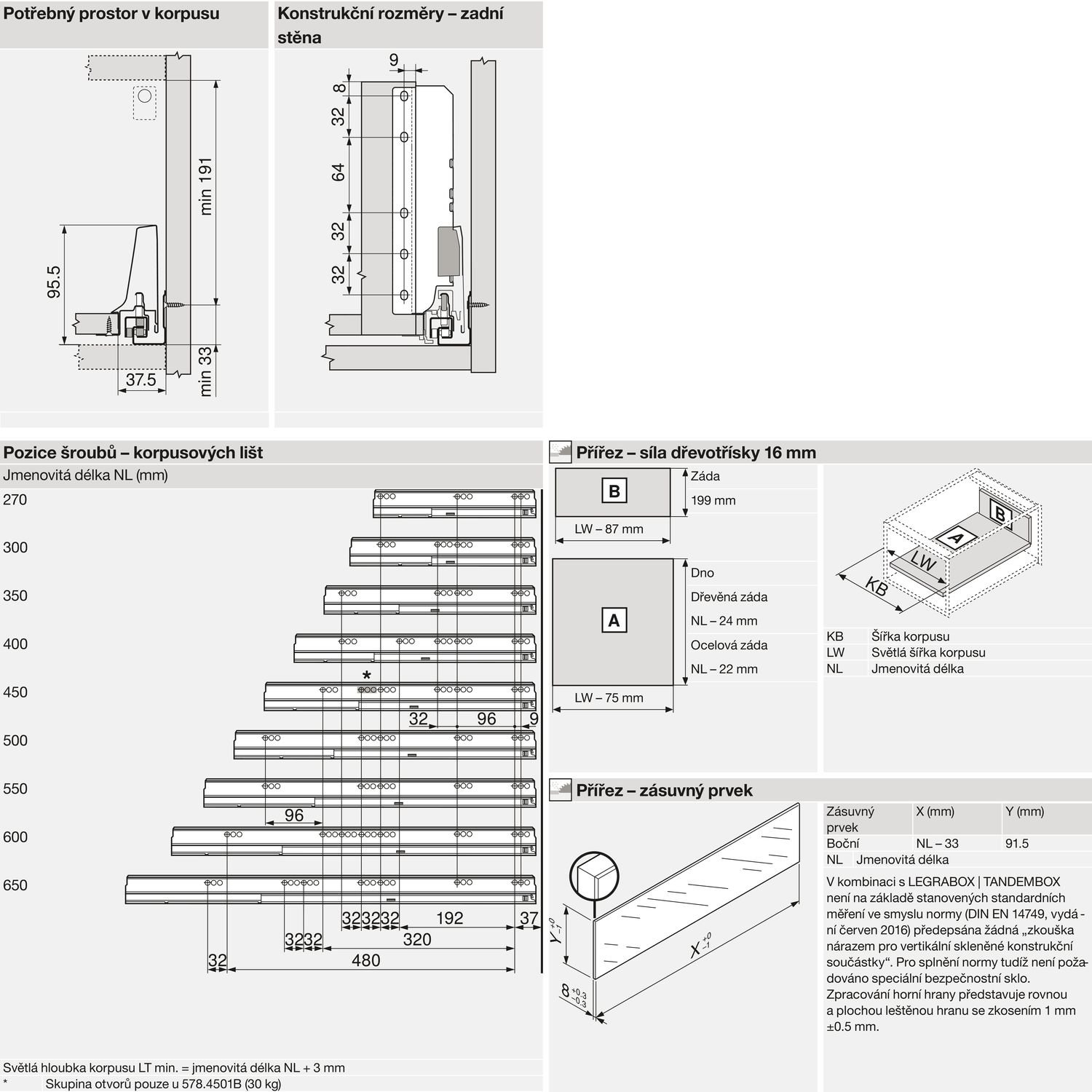
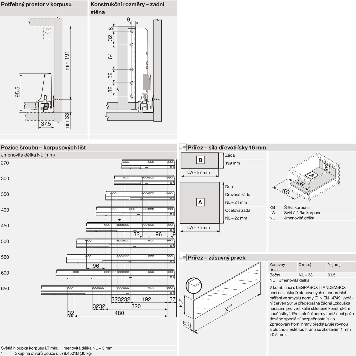
    Jmenovitá délka (mm): 400
    Výška bočnice (mm): 83
    Nosnost (kg): 30
    Materiál: ocel šedá RAL 9006
    plný výsuv se skrytým vedením, lehký a plynulý chod
    s jednoduchým relingem
    možnost využití zásuvných prvků
    potřebný prostor v korpusu: výška 192 mm, 
    min. světlá hloubka korpusu = jmenovitá délka NL + 3 mm
    montáž čela bez nářadí
    nastavení čela ve dvou směrech
TIP-ON BLUMOTION spojuje přednosti mechanického bezúchytkového otevírání TIP-ON s osvědčeným tlumením BLUMOTION pro měkké a tiché zavírání - vše zcela mechanické
Upozornění:
čelní kování a vhodnou jednotku TIP-ON BLUMOTION nutno objednat samostatně
Rozsah dodávky:
1 sada - bočnice včetně krytek
1 sada - korpusové lišty včetně TIP-ON BLUMOTION
1 sada - držák zadní stěny C
1 sada - podélný reling
BLUM TANDEMBOX antaro TIP-ON BLUMOTION, sada C+reling, 400mm, 30kg, šedá
 
              
