Obj. č: NED450CŠEDÁ
1 270,50 Kč
1 050,00 Kč bez DPH
BLUMOTION - měkké a tiché zavírání
Upozornění:
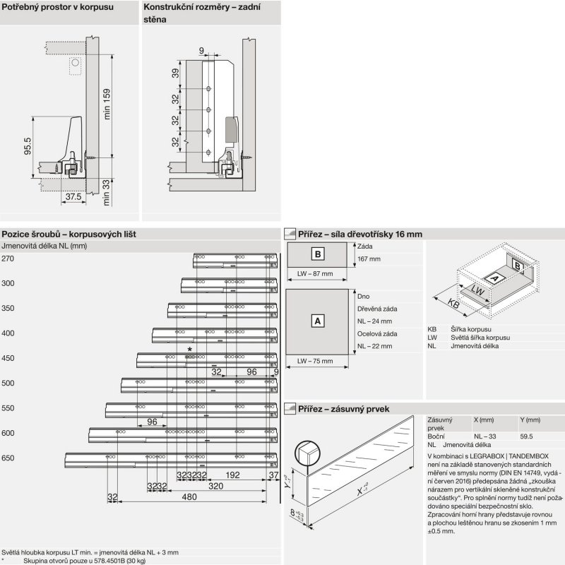
čelní kování nutno objednat samostatně
Rozsah dodávky:
1 sada - bočnice včetně krytek
1 sada - korpusové lišty včetně BLUMOTION
1 sada - držák zadní stěny
1 sada - podélný reling

