Obj. č: NED500DŠEDÁ
1 275,34 Kč
1 054,00 Kč bez DPH
Typ: TANDEMBOX antaro
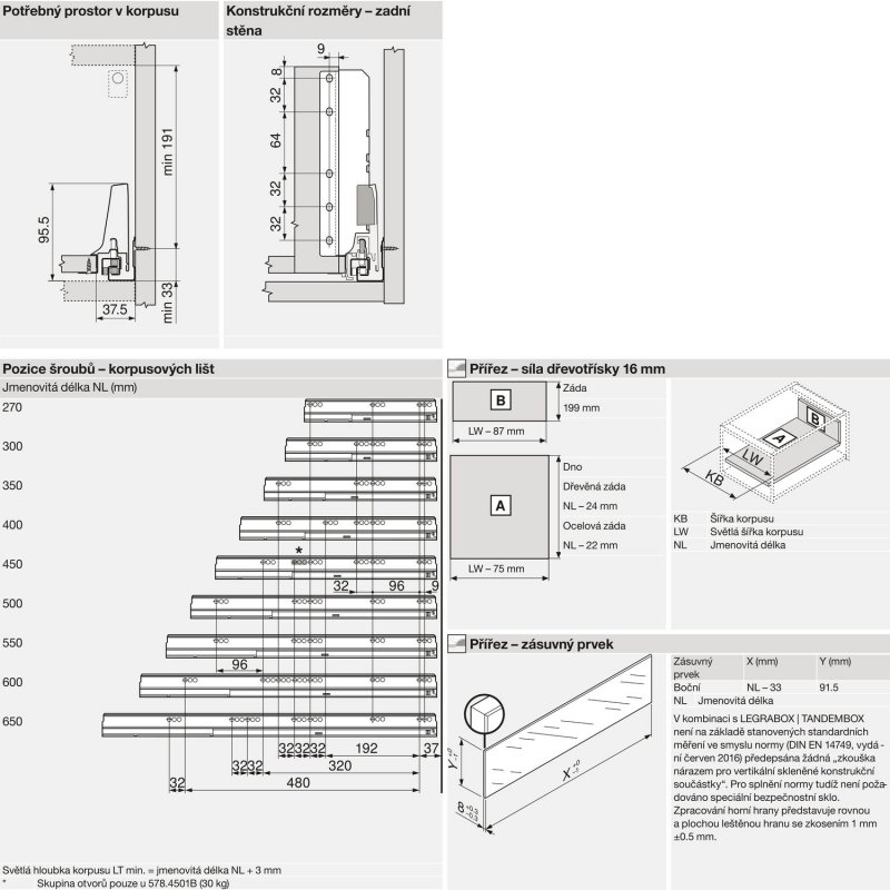
Jmenovitá délka (mm): 500
Výška bočnice (mm): 83
Nosnost (kg): 30
Materiál: ocel šedá RAL 9006
plný výsuv se skrytým vedením, lehký a plynulý chod
s jednoduchým relingem
možnost využití zásuvných prvků
potřebný prostor v korpusu: výška 224 mm, s TIP-ON BLUMOTION 227 mm
min. světlá hloubka korpusu = jmenovitá délka NL + 3 mm
montáž čela bez nářadí
nastavení čela ve dvou směrech
TIP-ON BLUMOTION spojuje přednosti mechanického bezúchytkového otevírání TIP-ON s osvědčeným tlumením BLUMOTION pro měkké a tiché zavírání - vše zcela mechanické
Upozornění:
čelní kování a vhodnou jednotku TIP-ON BLUMOTION nutno objednat samostatně
Rozsah dodávky:
1 sada - bočnice včetně krytek
1 sada - korpusové lišty včetně TIP-ON BLUMOTION
1 sada - držák zadní stěny
1 sada - podélný reling

