Kategorie

BLUM X ANTARO 500 K/D bílý 30kg bočnice K+D záda, KOMPLET

BLUM X ANTARO 500 K/D bílý 30kg bočnice K+D záda, KOMPLET

Obj. č: NED500KDBÍLÁ

1 594,90 Kč

1 318,10 Kč bez DPH

bal
Koupit

    • Typ: TANDEMBOX antaro
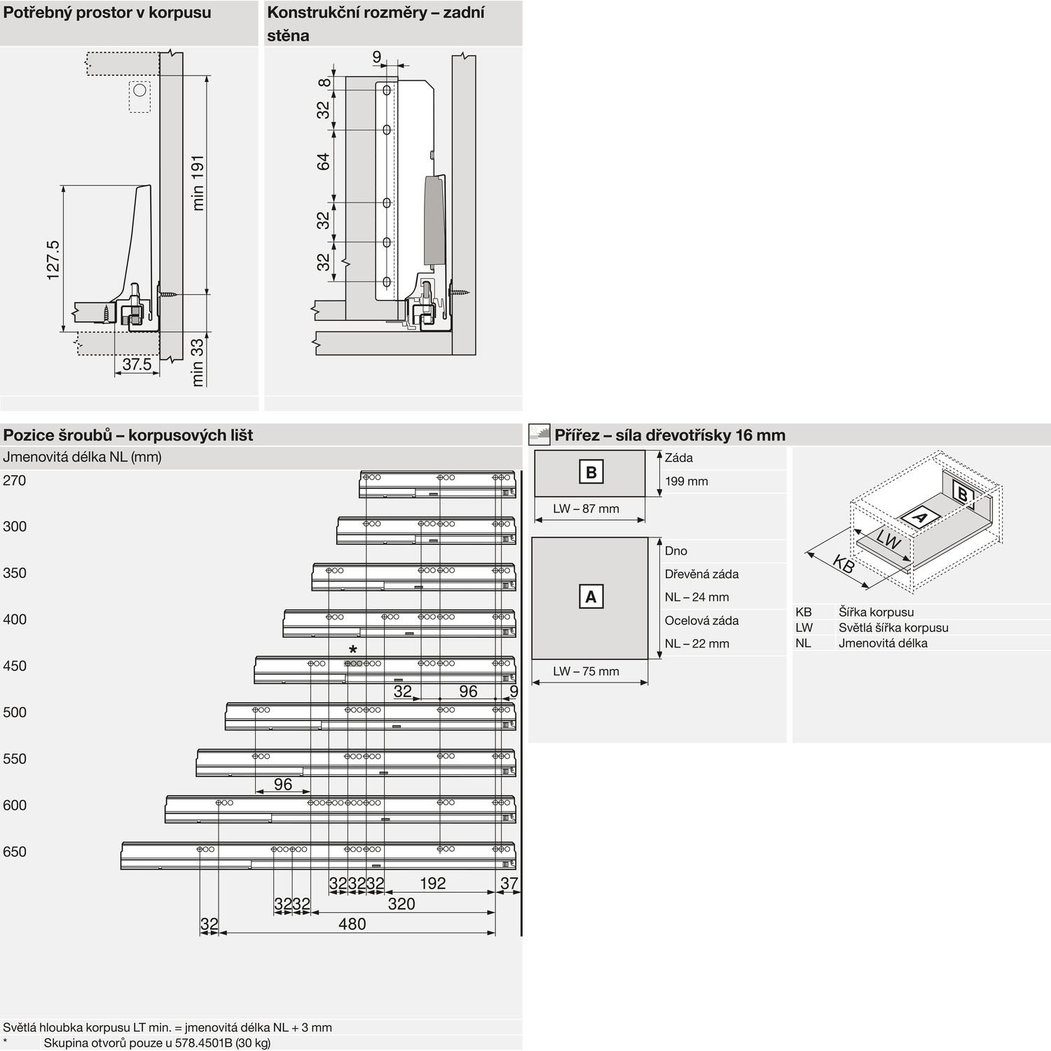
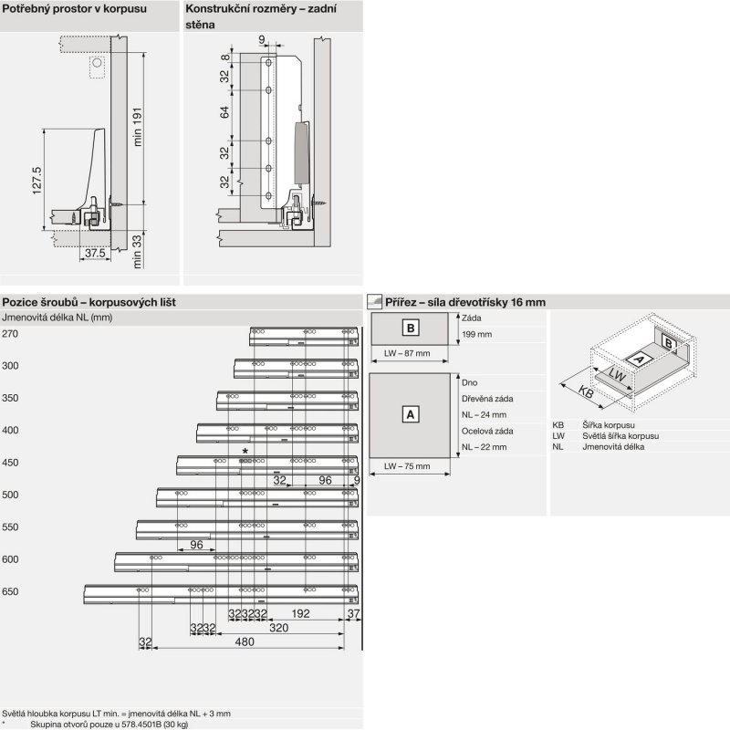
    • Jmenovitá délka (mm): 500
    • Výška bočnice (mm): 115
    • Nosnost (kg): 30
    • Materiál: ocel hedvábně bílá mat
      • plný výsuv se skrytým vedením, lehký a plynulý chod
      • s jednoduchým relingem
      • potřebný prostor v korpusu: výška 224 mm, s TIP-ON BLUMOTION 227 mm
      • min. světlá hloubka korpusu = jmenovitá délka NL + 3 mm
      • montáž čela bez nářadí
      • nastavení čela ve dvou směrech
      • BLUMOTION - měkké a tiché zavírání

      Upozornění:
      čelní kování nutno objednat samostatně

      Rozsah dodávky:
      1 sada - bočnice včetně krytek
      1 sada - korpusové lišty včetně BLUMOTION
      1 sada - držák zadní stěny
      1 sada - podélný reling

  • Barva: BÍLÁ
  • Délka: 500.
  • Výrobce: BLUM

BLUM TANDEMBOX antaro BLUMOTION, sada D+reling (bočnice K), 500mm, 30kg, bílá