Obj. č: NED550CBÍLÁ
1 363,43 Kč
1 126,80 Kč bez DPH
Upozornění:
čelní kování a vhodnou jednotku TIP-ON BLUMOTION nutno objednat samostatně
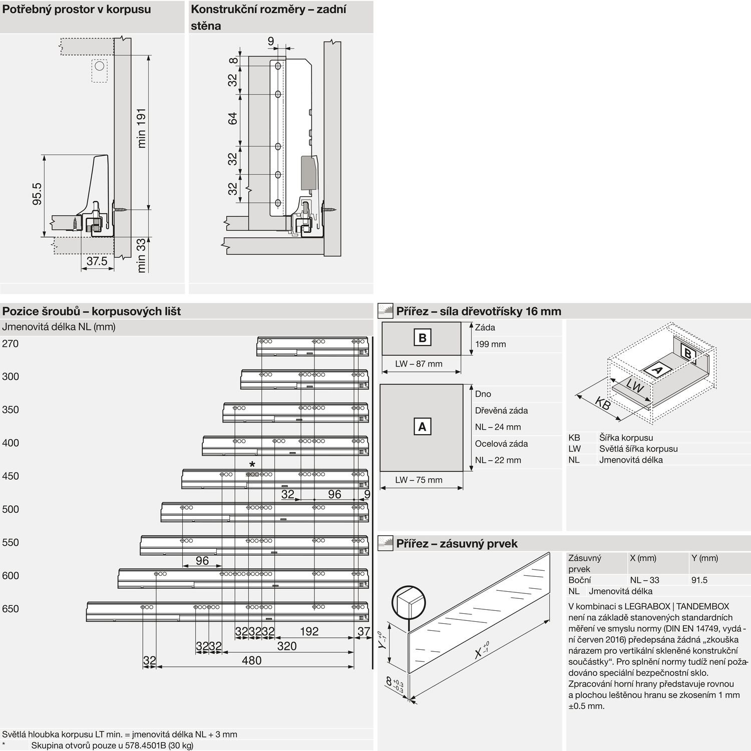
Rozsah dodávky:
1 sada - bočnice včetně krytek
1 sada - korpusové lišty včetně TIP-ON BLUMOTION
1 sada - držák zadní stěny
1 sada - podélný reling

