Kategorie

BLUM X ANTARO 550 C šedý 30kg, KOMPLET

BLUM X ANTARO 550 C šedý 30kg, KOMPLET

Obj. č: NED550CŠEDÁ

1 363,43 Kč

1 126,80 Kč bez DPH

bal
Koupit

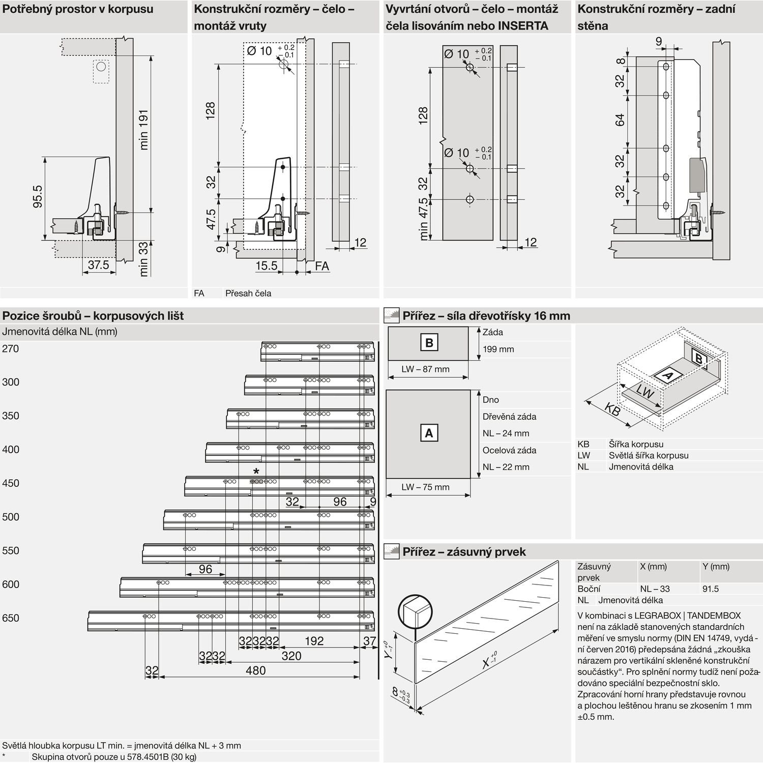
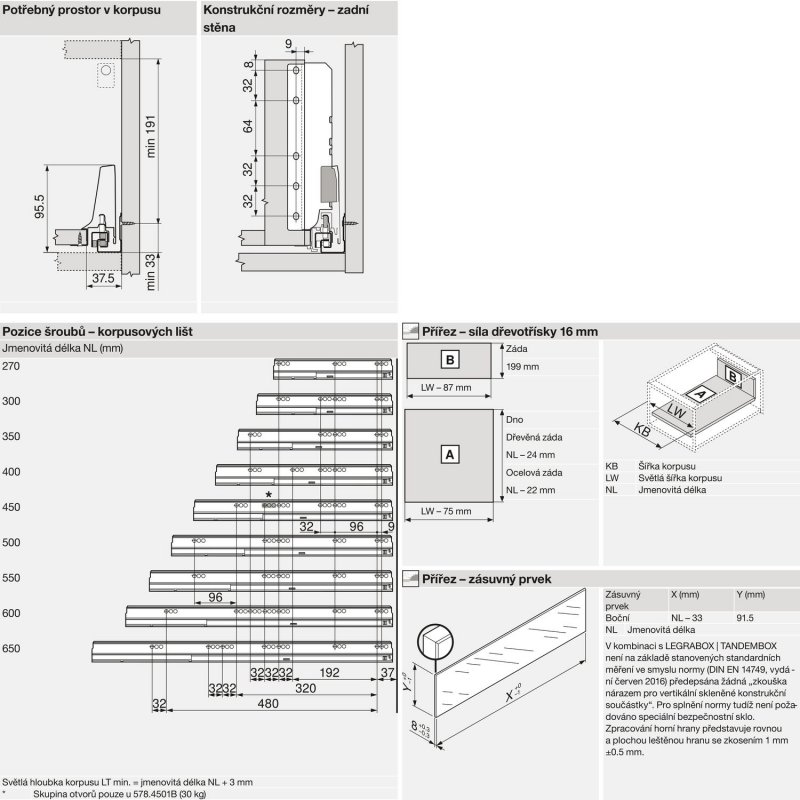
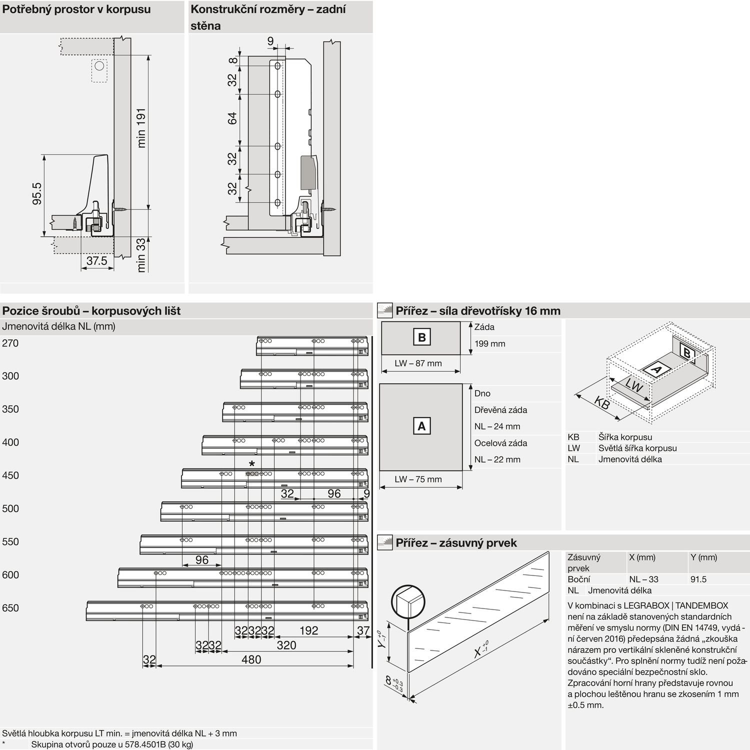
 Jmenovitá délka (mm): 550
    Výška bočnice (mm): 83
    Nosnost (kg): 30
    Materiál: ocel šedý

        plný výsuv se skrytým vedením, lehký a plynulý chod
    s jednoduchým relingem
    možnost využití zásuvných prvků
    potřebný prostor v korpusu: výška 192 mm, s TIP-ON BLUMOTION 195 mm
    min. světlá hloubka korpusu = jmenovitá délka NL + 3 mm
    montáž čela bez nářadí
    nastavení čela ve dvou směrech

    TIP-ON BLUMOTION spojuje přednosti mechanického bezúchytkového otevírání TIP-ON s osvědčeným tlumením BLUMOTION pro měkké a tiché zavírání - vše zcela mechanické

Upozornění:
čelní kování a vhodnou jednotku TIP-ON BLUMOTION nutno objednat samostatně

Rozsah dodávky:
1 sada - bočnice včetně krytek
1 sada - korpusové lišty včetně TIP-ON BLUMOTION
1 sada - držák zadní stěny
1 sada - podélný reling

  • Barva: ŠEDÁ
  • Délka: 550.
  • Výrobce: BLUM

BLUM TANDEMBOX antaro TIP-ON BLUMOTION, sada C+reling, 550mm, 30kg, šedá