Kategorie

BLUM X ANTARO 550 K/D šedá 30kg bočnice K+D záda, KOMPLET

BLUM X ANTARO 550 K/D šedá 30kg bočnice K+D záda, KOMPLET

Obj. č: NED550KDSEDA

1 682,87 Kč

1 390,80 Kč bez DPH

bal
Koupit

    • Typ: TANDEMBOX antaro
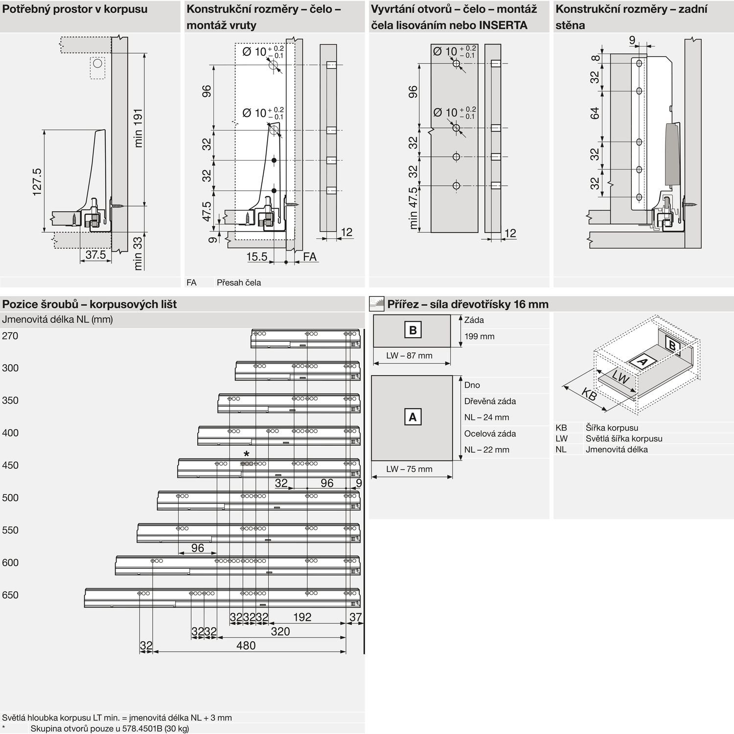
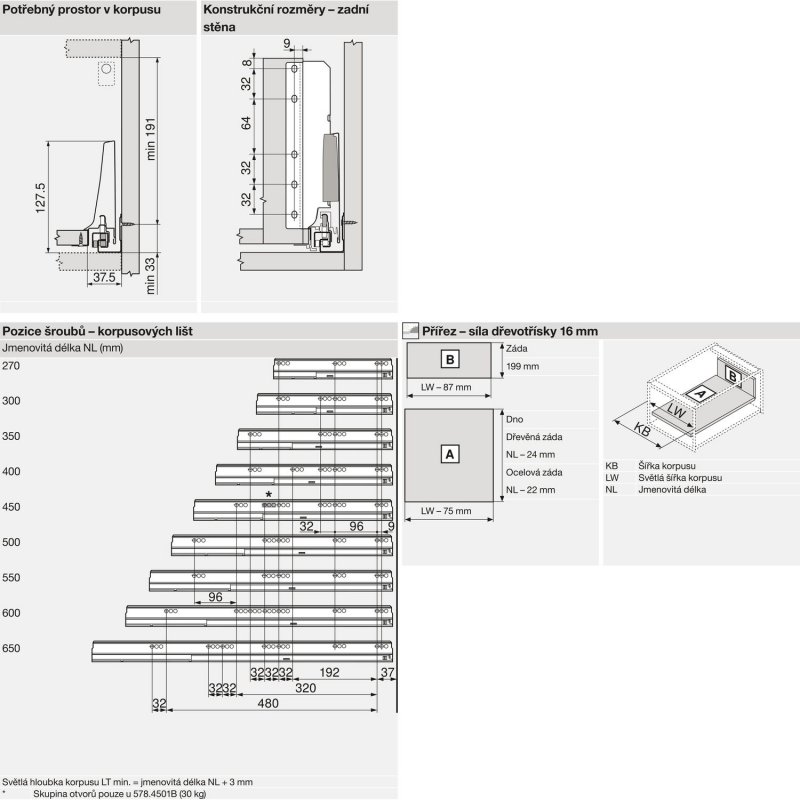
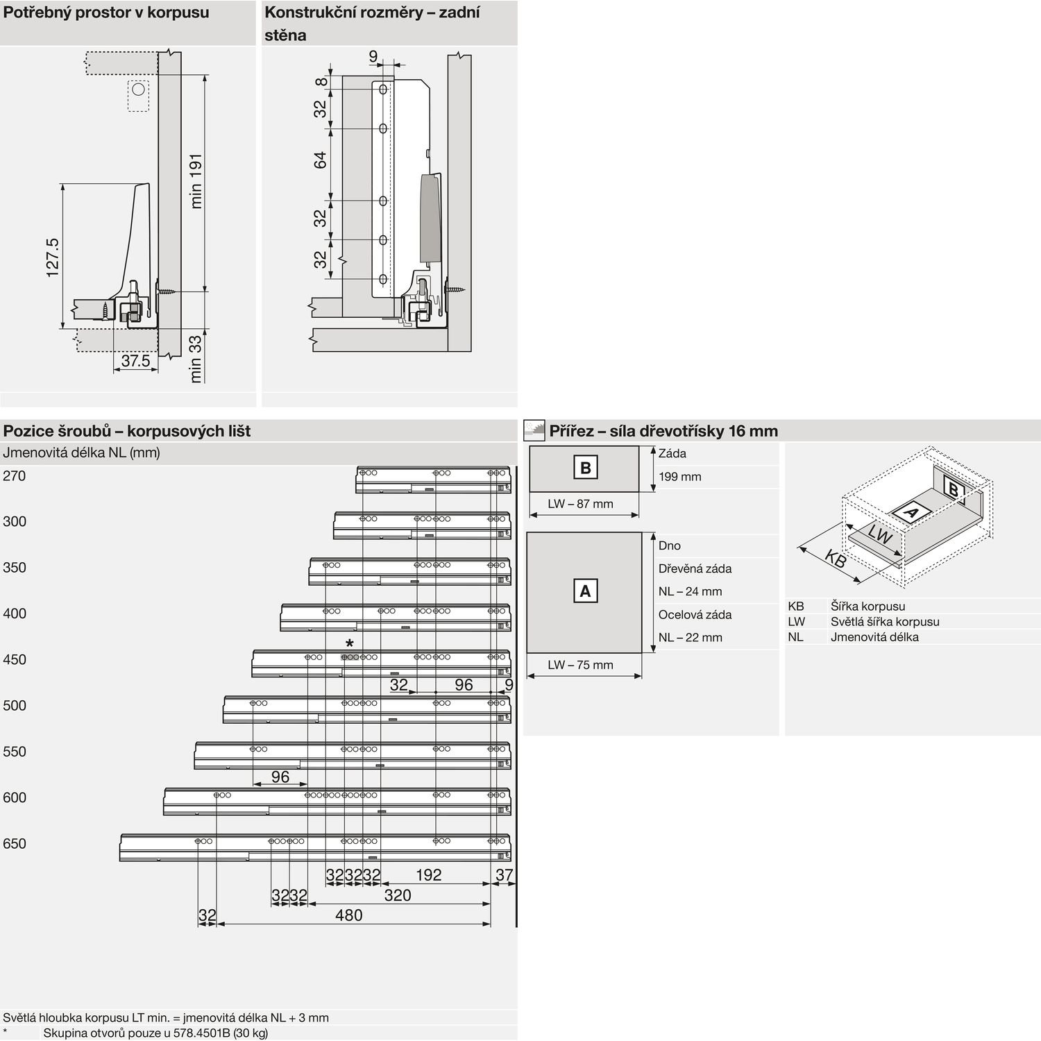
    • Jmenovitá délka (mm): 550
    • Výška bočnice (mm): 115
    • Nosnost (kg): 30
    • Materiál: ocel šedá
      • plný výsuv se skrytým vedením, lehký a plynulý chod
      • s jednoduchým relingem
      • potřebný prostor v korpusu: výška 224 mm,
      • min. světlá hloubka korpusu = jmenovitá délka NL + 3 mm
      • montáž čela bez nářadí
      • nastavení čela ve dvou směrech
      • BLUMOTION - měkké a tiché zavírání

      Upozornění:
      čelní kování nutno objednat samostatně

      Rozsah dodávky:
      1 sada - bočnice včetně krytek
      1 sada - korpusové lišty včetně BLUMOTION
      1 sada - držák zadní stěny
      1 sada - podélný reling

  • Barva: ŠEDÁ
  • Délka: 550.
  • Výrobce: BLUM

BLUM TANDEMBOX antaro BLUMOTION, sada D+reling (bočnice K), 550mm, 30kg, šedá