Obj. č: NED600DBILA
1 603,25 Kč
1 325,00 Kč bez DPH
Upozornění:
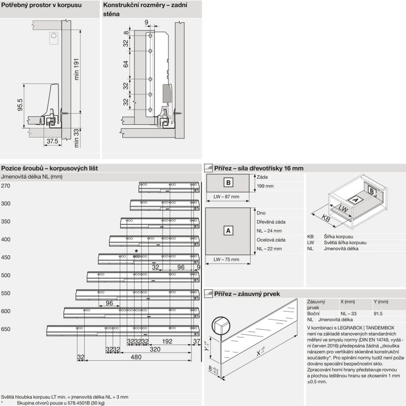
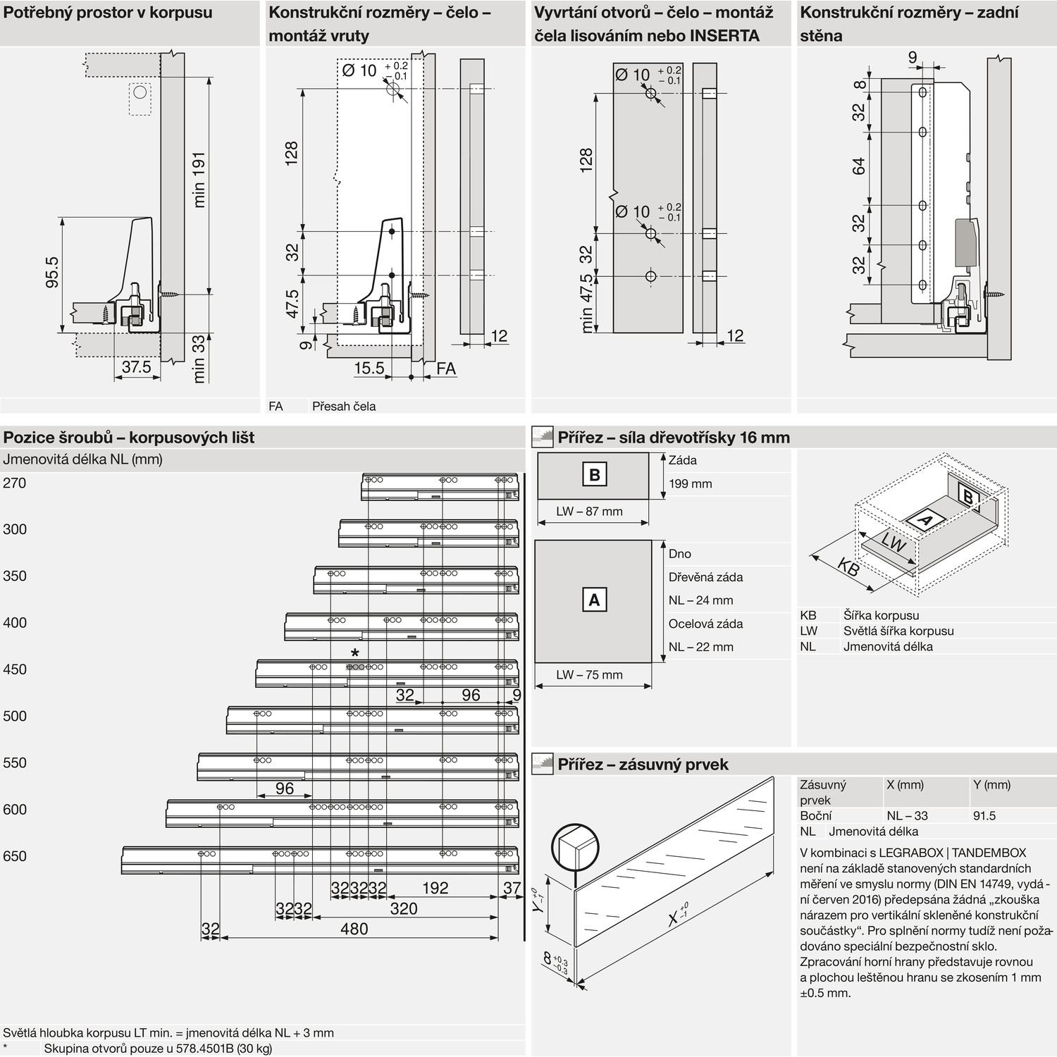
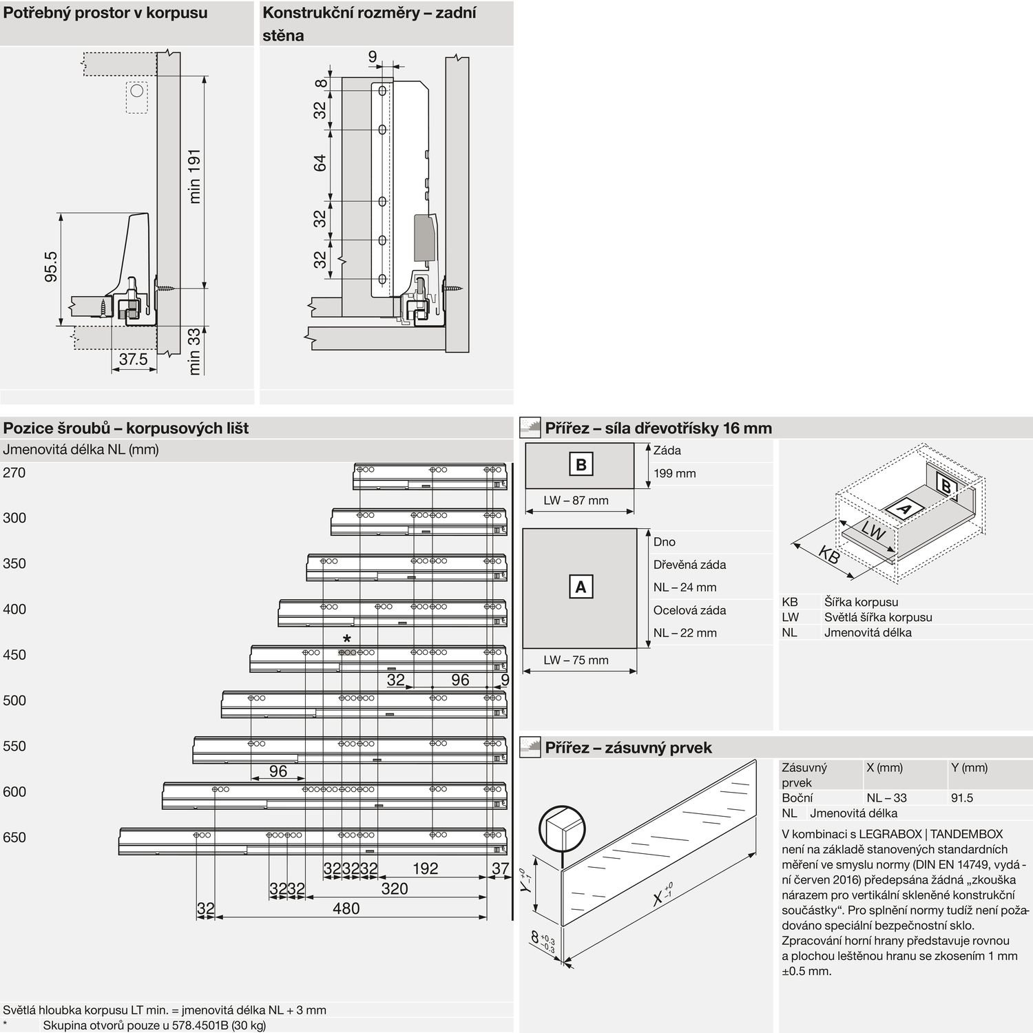
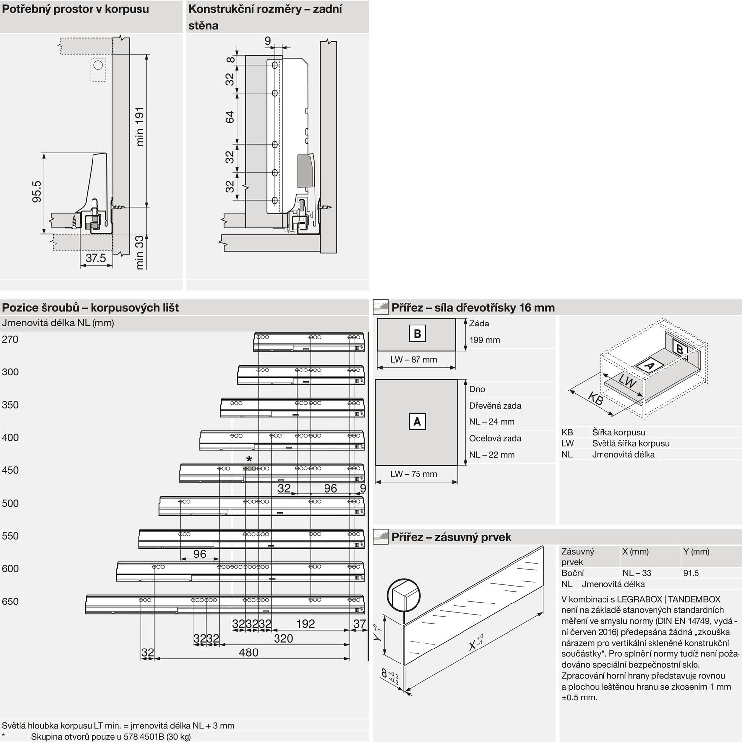
Při použití diagonálně pro úzké korpusy nosnost max. 20 kg.
Upozornění:
čelní kování nutno objednat samostatně
Rozsah dodávky:
1 sada - bočnice včetně krytek
1 sada - korpusové lišty včetně BLUMOTION
1 sada - držák zadní stěny
1 sada - podélný reling
BLUM TANDEMBOX antaro BLUMOTION, sada D+reling, 600 mm, 30kg, hedvábně bílá

