Kategorie

BLUM X ANTARO 600 D bílý 65kg, KOMPLET

BLUM X ANTARO 600 D bílý 65kg, KOMPLET

Obj. č: NED600DBÍLÁ 60kg

1 773,26 Kč

1 465,50 Kč bez DPH

ks
Koupit

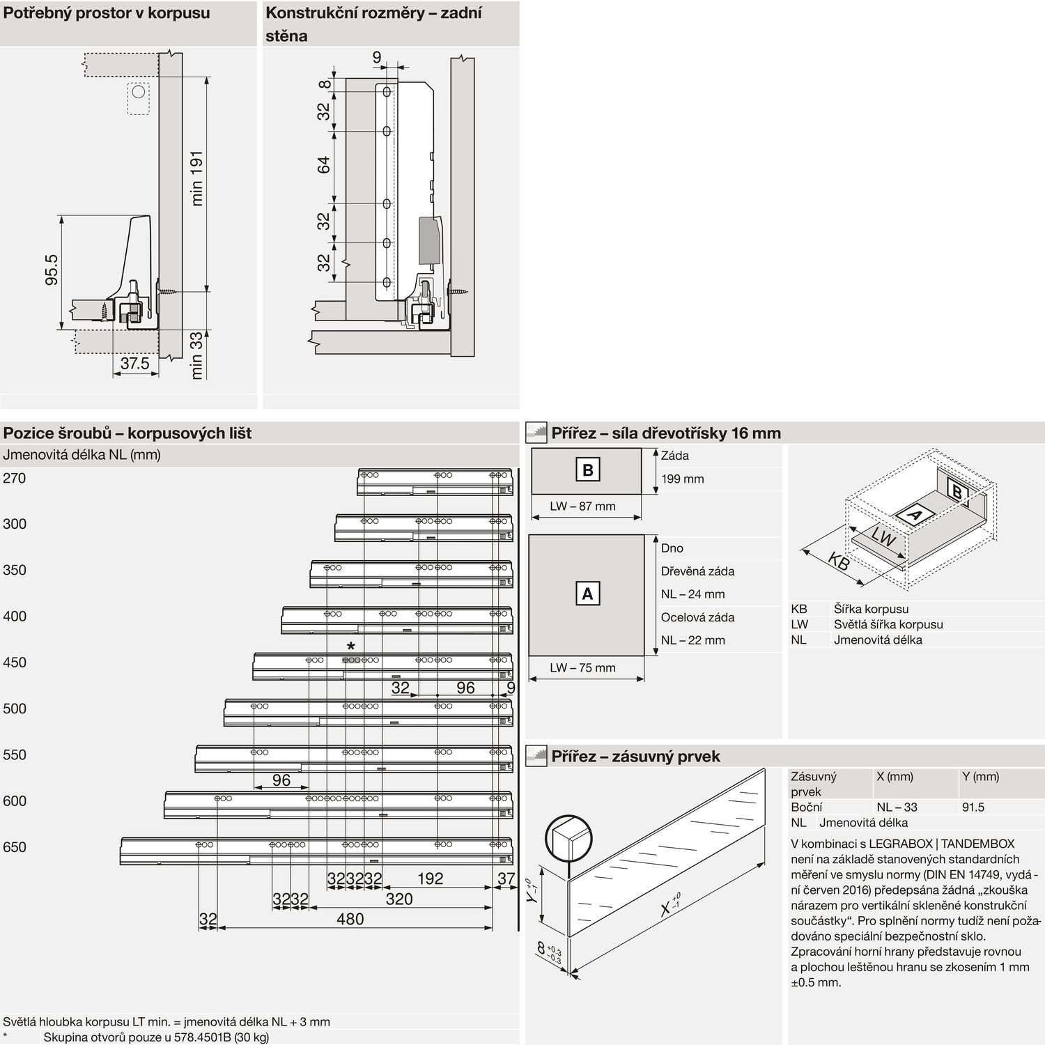
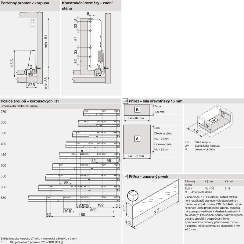
  • Jmenovitá délka (mm): 600
  • Výška bočnice (mm): 83
  • Nosnost (kg): 65
  • Materiál: ocel hedvábně bílá mat
    • plný výsuv se skrytým vedením, lehký a plynulý chod
    • s jednoduchým relingem
    • možnost využití zásuvných prvků
    • potřebný prostor v korpusu: výška 224 mm, s TIP-ON BLUMOTION 227 mm
    • min. světlá hloubka korpusu = jmenovitá délka NL + 3 mm
    • montáž čela bez nářadí
    • nastavení čela ve dvou směrech
    • BLUMOTION - měkké a tiché zavírání

    Upozornění:
    čelní kování nutno objednat samostatně

    Rozsah dodávky:
    1 sada - bočnice včetně krytek
    1 sada - korpusové lišty včetně BLUMOTION
    1 sada - držák zadní stěny
    1 sada - podélný reling

  • Barva: BÍLÁ
  • Délka: 600.
  • Výrobce: BLUM

BLUM TANDEMBOX antaro BLUMOTION, sada D+reling, 600 mm, 65kg, bílá