Kategorie

BLUM X ANTARO 600 D šedý 65kg, KOMPLET

BLUM X ANTARO 600 D šedý 65kg, KOMPLET

Obj. č: NED600DŠEDÁ 60kg

1 777,85 Kč

1 469,30 Kč bez DPH

ks
Koupit

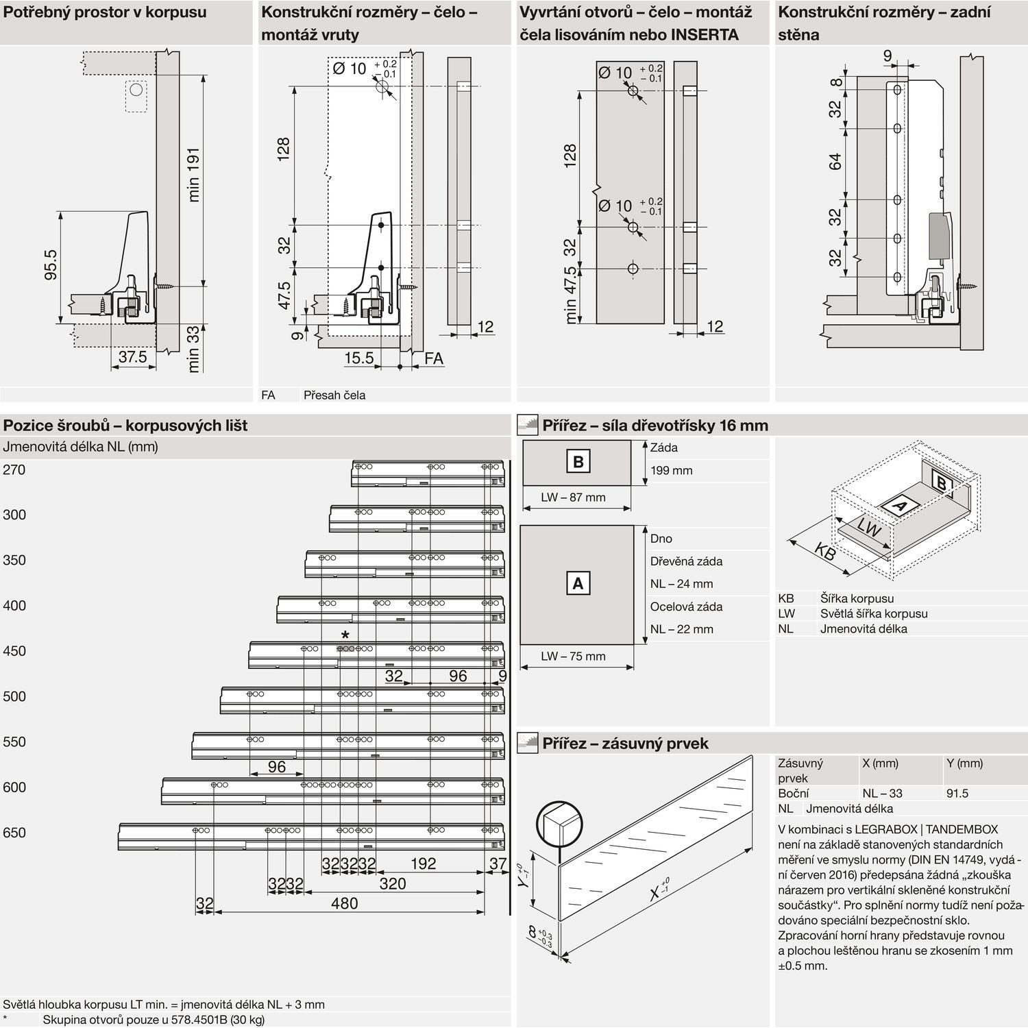
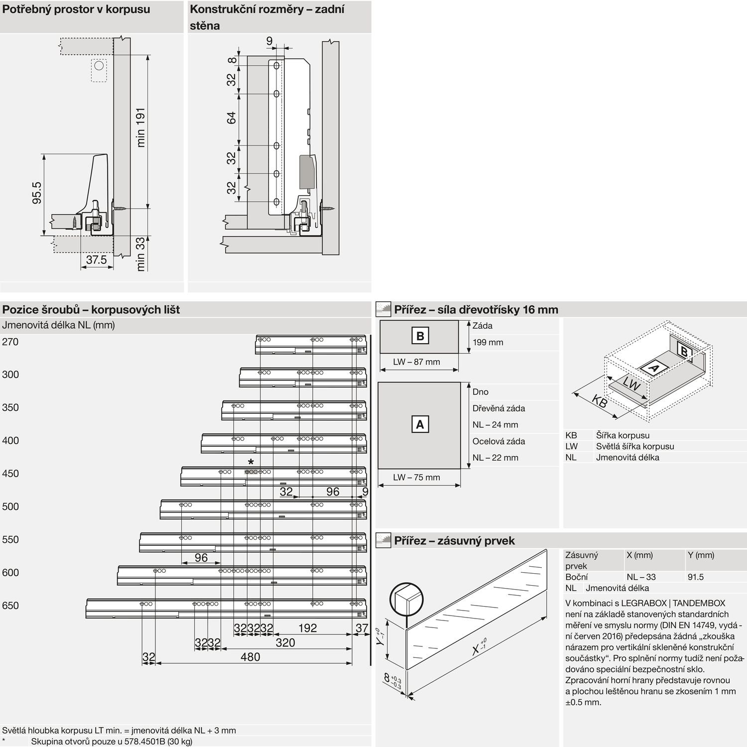
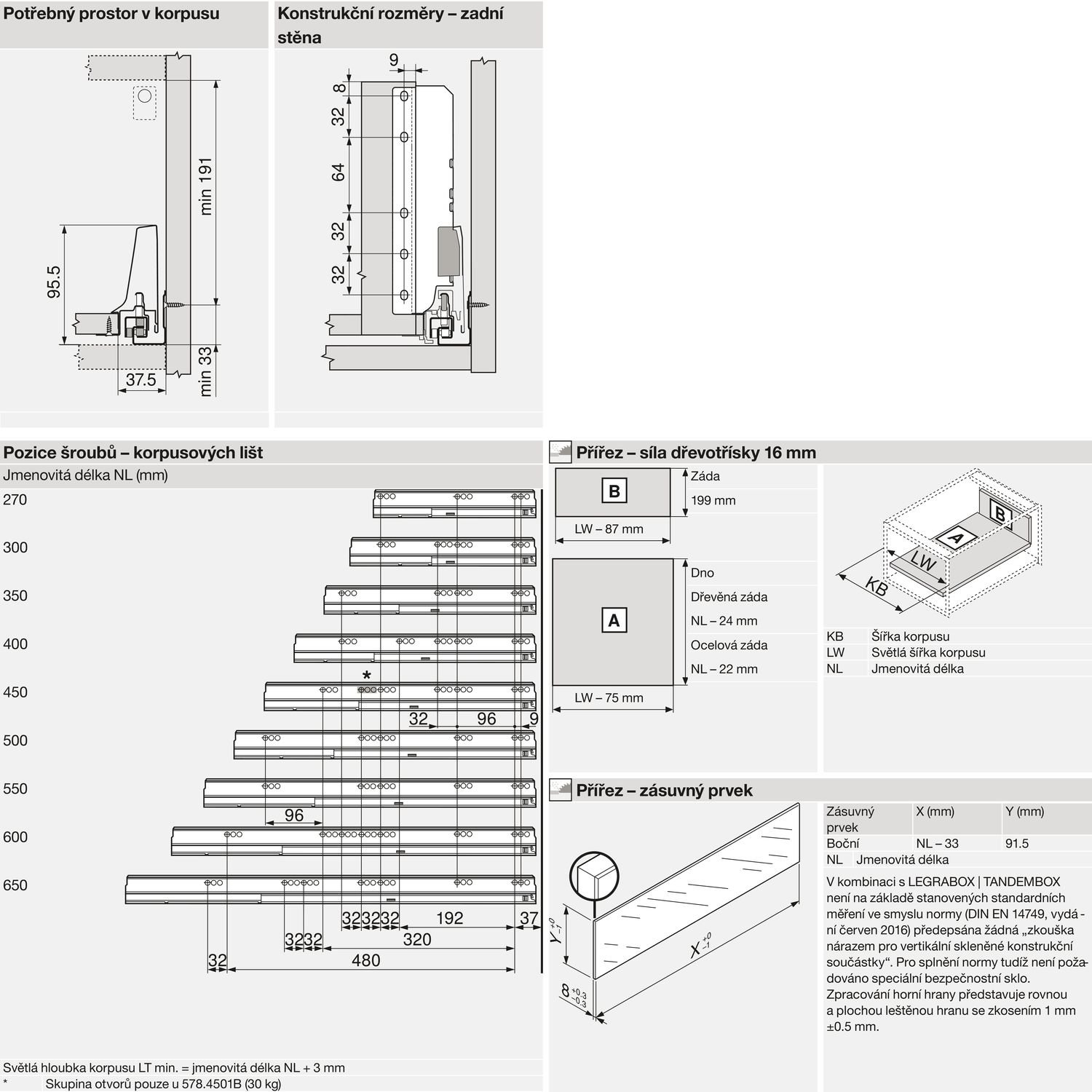
  • Jmenovitá délka (mm): 600
  • Výška bočnice (mm): 83
  • Nosnost (kg): 65
  • Materiál: šedá
    • plný výsuv se skrytým vedením, lehký a plynulý chod
    • s jednoduchým relingem
    • možnost využití zásuvných prvků
    • potřebný prostor v korpusu: výška 224 mm, s TIP-ON BLUMOTION 227 mm
    • min. světlá hloubka korpusu = jmenovitá délka NL + 3 mm
    • montáž čela bez nářadí
    • nastavení čela ve dvou směrech
      • TIP-ON BLUMOTION spojuje přednosti mechanického bezúchytkového otevírání TIP-ON s osvědčeným tlumením BLUMOTION pro měkké a tiché zavírání - vše zcela mechanické
    • Upozornění:
      čelní kování a vhodnou jednotku TIP-ON BLUMOTION nutno objednat samostatně

      Rozsah dodávky:
      1 sada - bočnice včetně krytek
      1 sada - korpusové lišty včetně BLUMOTION
      1 sada - držák zadní stěny
      1 sada - podélný reling

  • Barva: ŠEDÁ
  • Délka: 600.
  • Výrobce: BLUM

BLUM TANDEMBOX antaro BLUMOTION, sada D+reling, 600 mm, 65kg, šedá