Obj. č: NED650DŠEDÁ 60kg
1 846,46 Kč
1 526,00 Kč bez DPH
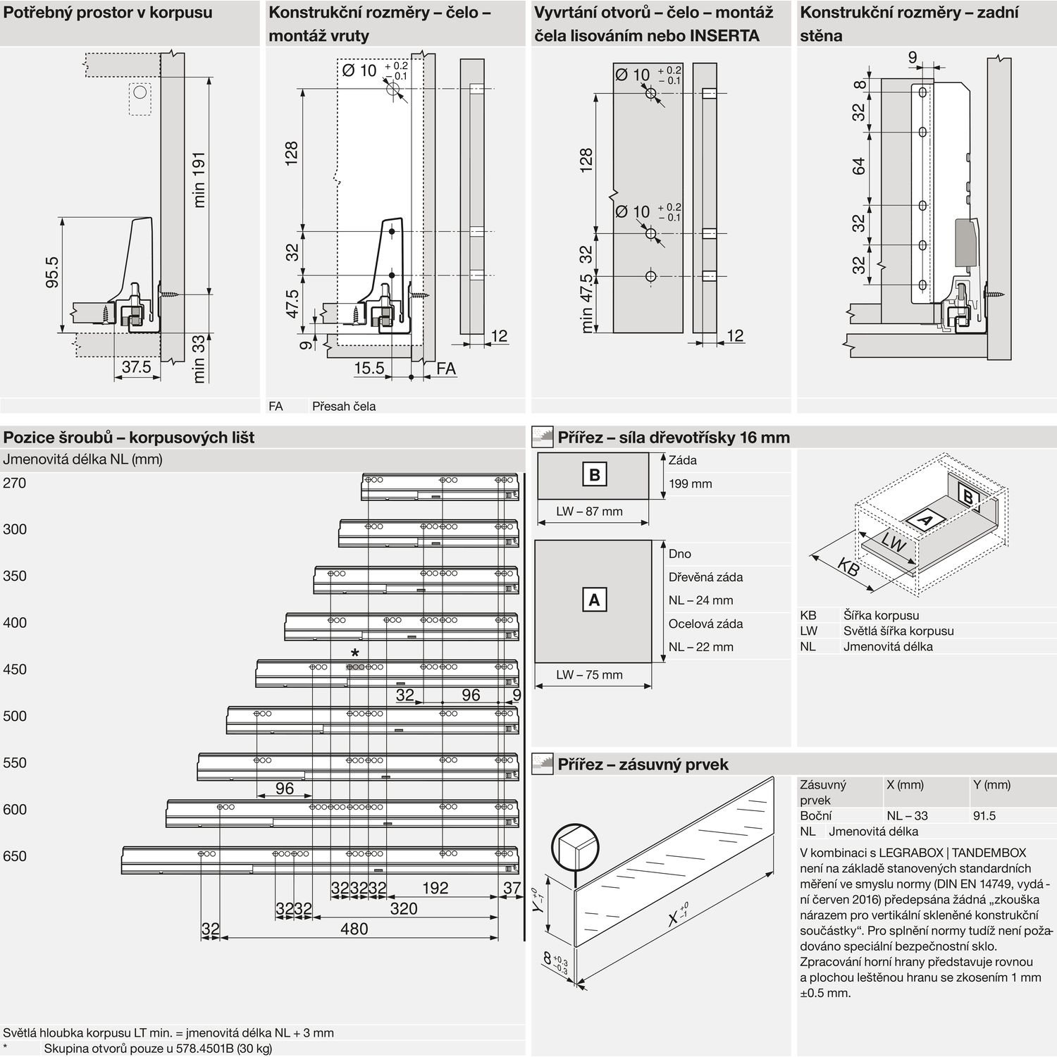
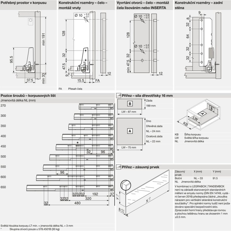
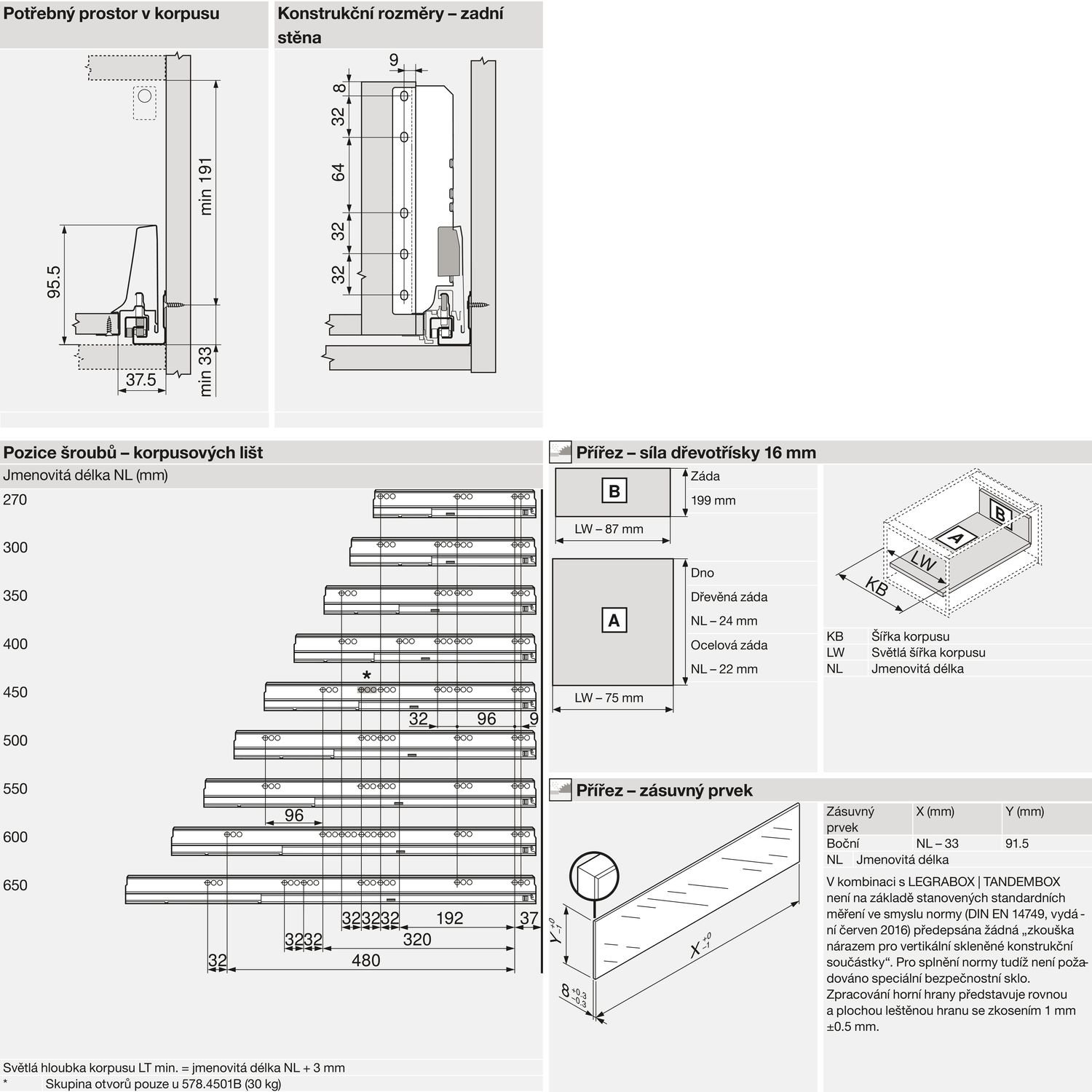
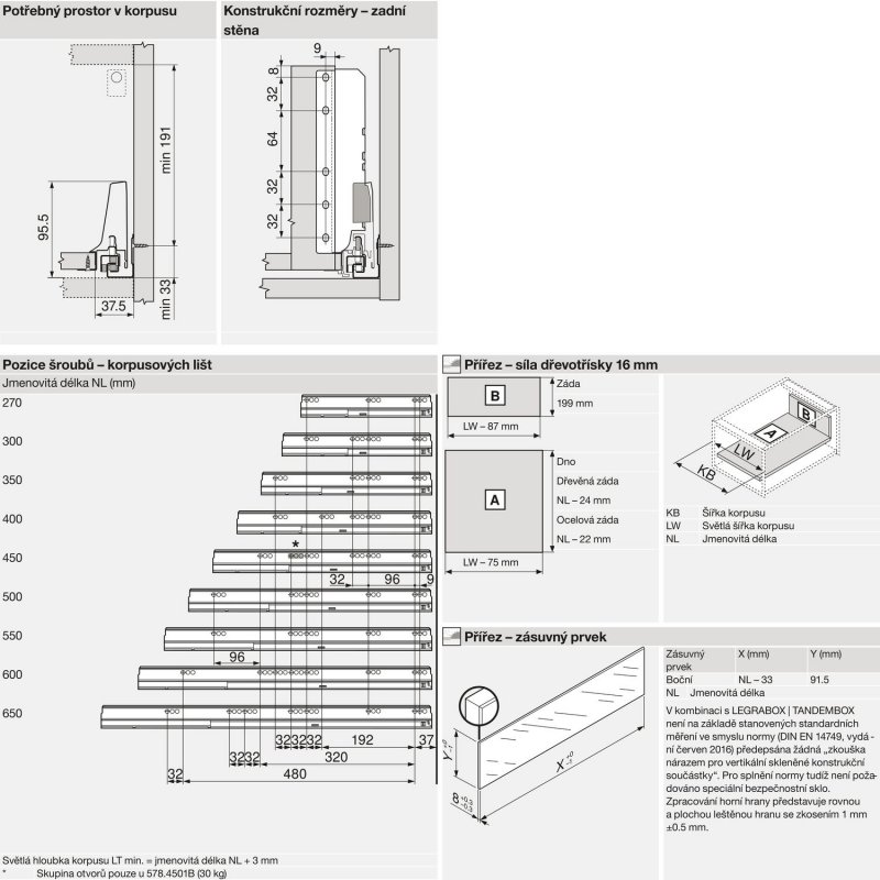
Upozornění:
Při použití diagonálně pro úzké korpusy nosnost max. 20 kg.
Upozornění:
čelní kování nutno objednat samostatně
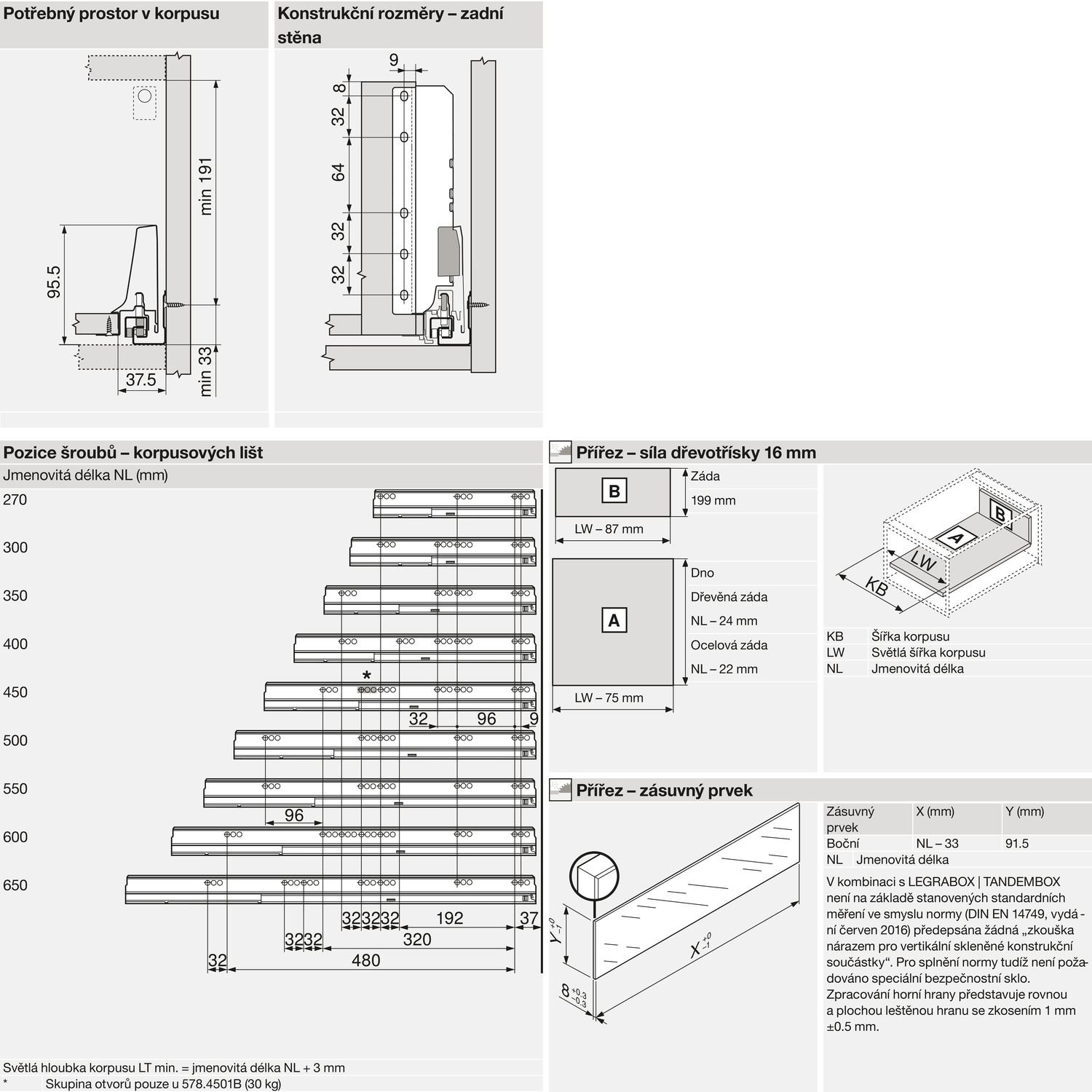
Rozsah dodávky:
1 sada - bočnice včetně krytek
1 sada - korpusové lišty včetně BLUMOTION
1 sada - držák zadní stěny
1 sada - podélný reling
BLUM TANDEMBOX antaro BLUMOTION, sada D+reling, 650 mm, 65kg, hedvábně bílá

